Skip to content
R.C.M. CAD DESIGN DRAFTING LTD is an house design firm primarily specializing in log and timber construction projects. We feature over 150 of our most creative designs categorized by living space total square footage.
Many of our smaller home designs – 500 to 1000 Square Feet are now available as STUDY PLANS you can buy using your credit card with PayPal.
Please Note: The study set of plans is meant to be a working tool for future home owners to mark up with ideas and changes to discuss with R.C.M. Cad Design. The sale of the study set of plans does not include any right or permission to use the study set of plans for drafting plans, nor for construction, nor for resale. All plans are protected under copyright.
As soon as PayPal payment is confirmed we will email you PDF files of construction set of plans so you may plot as many paper copies as you need for one construction project only, under customer’s name.
If you wish to apply changes to original design, apply local plan review redlines (example: California) and engineering redlines, email us a full list of changes and we will email you a quote for the work.
Almost all our design work is custom, to fit our customer’s needs, wants and budget, land topography and orientation to view and sun.
Our study plans include the following information:
Four coloured renderings of the home
Minimum two elevations with dimensions
Floor Plans with dimensions
The following permission: You are permitted to print a to-scale set of plans onto 2’x3′ paper (at your local printer), and/or to print them onto letter-size paper
If you have any questions regarding these floor plans, please do not hesitate to contact us .
Please click on the images below to see a larger version of the 500 to 1000 Square Feet floor plans.
513 sq. ft - Bunk House Handcrafted © R.C.M. Cad Design Drafting Ltd.
513 sq. ft - Bunk House Handcrafted © R.C.M. Cad Design Drafting Ltd.
513 sq. ft - Bunk House Handcrafted © R.C.M. Cad Design Drafting Ltd.
513 sq. ft - Bunk House Handcrafted © R.C.M. Cad Design Drafting Ltd.
513 sq. ft - Bunk House Handcrafted © R.C.M. Cad Design Drafting Ltd.
513 sq. ft - Bunk House Handcrafted © R.C.M. Cad Design Drafting Ltd.
513 sq. ft - Bunk House Handcrafted © R.C.M. Cad Design Drafting Ltd.
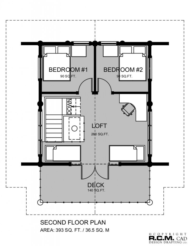
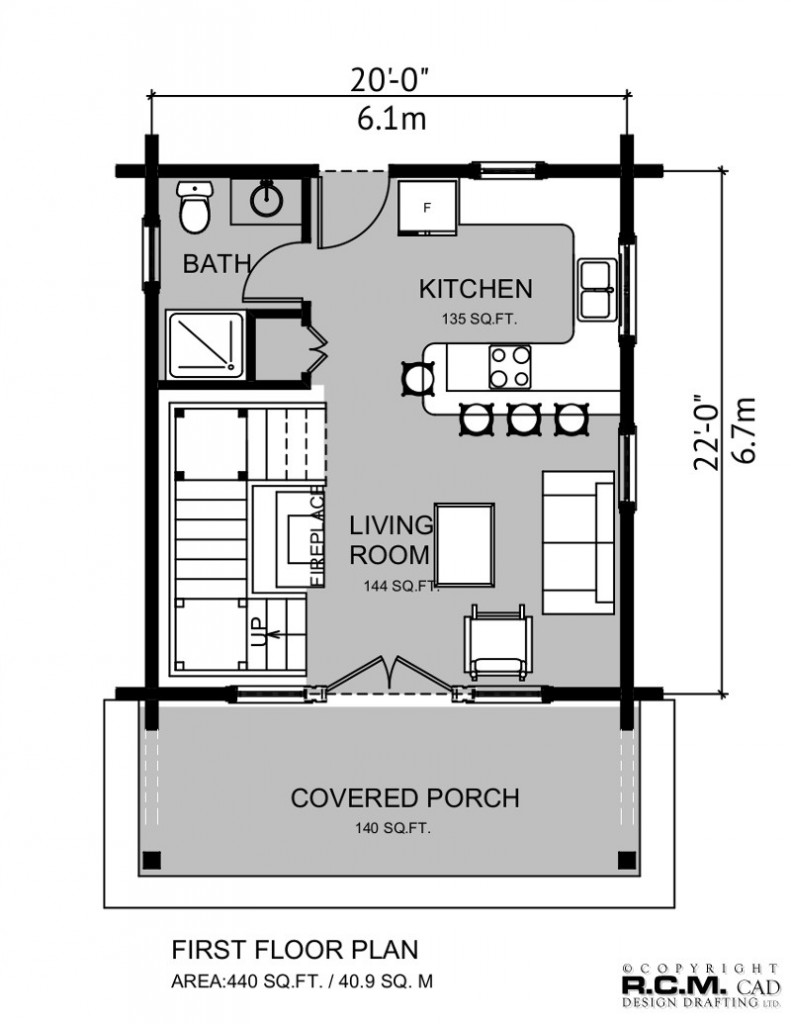
The Bunk House
513 Sq. Ft.
(47.6 sq m)
578 sq. ft - The Smurf RCM CAD DESIGN DRAFTING LTD is an architectural design firm primarily specializing in log and timber construction projects.
578 sq. ft - The Smurf RCM CAD DESIGN DRAFTING LTD is an architectural design firm primarily specializing in log and timber construction projects.
578 sq. ft - The Smurf RCM CAD DESIGN DRAFTING LTD is an architectural design firm primarily specializing in log and timber construction projects.
578 sq. ft - The Smurf RCM CAD DESIGN DRAFTING LTD is an architectural design firm primarily specializing in log and timber construction projects.
578 sq. ft - The Smurf RCM CAD DESIGN DRAFTING LTD is an architectural design firm primarily specializing in log and timber construction projects.
578 sq. ft - The Smurf RCM CAD DESIGN DRAFTING LTD is an architectural design firm primarily specializing in log and timber construction projects.
578 sq. ft - The Smurf RCM CAD DESIGN DRAFTING LTD is an architectural design firm primarily specializing in log and timber construction projects.
578 sq. ft - Smurf Handcrafted RCM CAD DESIGN DRAFTING LTD is an architectural design firm primarily specializing in log and timber construction projects.
578 sq. ft - Smurf Handcrafted RCM CAD DESIGN DRAFTING LTD is an architectural design firm primarily specializing in log and timber construction projects.
The Smurf
578 Sq. Ft.
(53.6 sq m)
588 sq. ft - Smurf Piece en Piece RCM CAD DESIGN DRAFTING LTD is an architectural design firm primarily specializing in log and timber construction projects.
588 sq. ft - Smurf Piece en Piece RCM CAD DESIGN DRAFTING LTD is an architectural design firm primarily specializing in log and timber construction projects.
588 sq. ft - Smurf Piece en Piece RCM CAD DESIGN DRAFTING LTD is an architectural design firm primarily specializing in log and timber construction projects.
588 sq. ft - Smurf Piece en Piece RCM CAD DESIGN DRAFTING LTD is an architectural design firm primarily specializing in log and timber construction projects.
588 sq. ft - Smurf Piece en Piece RCM CAD DESIGN DRAFTING LTD is an architectural design firm primarily specializing in log and timber construction projects.
588 sq. ft - Smurf Piece en Piece RCM CAD DESIGN DRAFTING LTD is an architectural design firm primarily specializing in log and timber construction projects.
588 sq. ft - Smurf Piece en Piece RCM CAD DESIGN DRAFTING LTD is an architectural design firm primarily specializing in log and timber construction projects.
588 sq. ft - Smurf Piece en Piece RCM CAD DESIGN DRAFTING LTD is an architectural design firm primarily specializing in log and timber construction projects.
588 sq. ft - Smurf Piece en Piece RCM CAD DESIGN DRAFTING LTD is an architectural design firm primarily specializing in log and timber construction projects.
588 sq. ft - Smurf Piece en Piece RCM CAD DESIGN DRAFTING LTD is an architectural design firm primarily specializing in log and timber construction projects.
588 sq. ft - Smurf Piece en Piece RCM CAD DESIGN DRAFTING LTD is an architectural design firm primarily specializing in log and timber construction projects.
588 sq. ft - Smurf Piece en Piece RCM CAD DESIGN DRAFTING LTD is an architectural design firm primarily specializing in log and timber construction projects.
The Smurf Piece en Piece
588 Sq. Ft.
(54.6 sq m)
600 sq. ft - Honeymoon Bay Handcrafted © R.C.M. Cad Design Drafting Ltd.
600 sq. ft - Honeymoon Bay Handcrafted © R.C.M. Cad Design Drafting Ltd.
600 sq. ft - Honeymoon Bay Handcrafted © R.C.M. Cad Design Drafting Ltd.
600 sq. ft - Honeymoon Bay Handcrafted © R.C.M. Cad Design Drafting Ltd.
600 sq. ft - Honeymoon Bay Handcrafted © R.C.M. Cad Design Drafting Ltd.
600 sq. ft - Honeymoon Bay Handcrafted © R.C.M. Cad Design Drafting Ltd.
The Honeymoon Bay
600 Sq. Ft.
(55.7 sq m)
610 sq ft - The Salt Spring Island RCM CAD DESIGN DRAFTING LTD is an architectural design firm primarily specializing in log and timber construction projects.
610 sq ft - The Salt Spring Island RCM CAD DESIGN DRAFTING LTD is an architectural design firm primarily specializing in log and timber construction projects.
610 sq ft - The Salt Spring Island RCM CAD DESIGN DRAFTING LTD is an architectural design firm primarily specializing in log and timber construction projects.
610 sq ft - The Salt Spring Island RCM CAD DESIGN DRAFTING LTD is an architectural design firm primarily specializing in log and timber construction projects.
610 sq ft - The Salt Spring Island RCM CAD DESIGN DRAFTING LTD is an architectural design firm primarily specializing in log and timber construction projects.
610 sq ft - The Salt Spring Island RCM CAD DESIGN DRAFTING LTD is an architectural design firm primarily specializing in log and timber construction projects.
The Salt Spring Island
610 Sq. Ft.
(56.6 sq m)
668 sqft Forest Ranger Tower RCM CAD DESIGN DRAFTING LTD is an architectural design firm primarily specializing in log and timber construction projects.
668 sqft Forest Ranger Tower RCM CAD DESIGN DRAFTING LTD is an architectural design firm primarily specializing in log and timber construction projects.
668 sqft Forest Ranger Tower RCM CAD DESIGN DRAFTING LTD is an architectural design firm primarily specializing in log and timber construction projects.
668 sqft Forest Ranger Tower RCM CAD DESIGN DRAFTING LTD is an architectural design firm primarily specializing in log and timber construction projects.
668 sqft Forest Ranger Tower RCM CAD DESIGN DRAFTING LTD is an architectural design firm primarily specializing in log and timber construction projects.
668 sqft Forest Ranger Tower RCM CAD DESIGN DRAFTING LTD is an architectural design firm primarily specializing in log and timber construction projects.
668 sqft Forest Ranger Tower RCM CAD DESIGN DRAFTING LTD is an architectural design firm primarily specializing in log and timber construction projects.
668 sqft Forest Ranger Tower RCM CAD DESIGN DRAFTING LTD is an architectural design firm primarily specializing in log and timber construction projects.
668 sqft Forest Ranger Tower RCM CAD DESIGN DRAFTING LTD is an architectural design firm primarily specializing in log and timber construction projects.
668 sqft Forest Ranger Tower RCM CAD DESIGN DRAFTING LTD is an architectural design firm primarily specializing in log and timber construction projects.
668 sqft Forest Ranger Tower RCM CAD DESIGN DRAFTING LTD is an architectural design firm primarily specializing in log and timber construction projects.
668 sqft Forest Ranger Tower RCM CAD DESIGN DRAFTING LTD is an architectural design firm primarily specializing in log and timber construction projects.
Forest Ranger Tower
668 Sq. Ft.
(62.1 sq m)
701 sq ft - Valdez RCM CAD DESIGN DRAFTING LTD is an architectural design firm primarily specializing in log and timber construction projects.
701 sq ft - Valdez RCM CAD DESIGN DRAFTING LTD is an architectural design firm primarily specializing in log and timber construction projects.
701 sq ft - Valdez RCM CAD DESIGN DRAFTING LTD is an architectural design firm primarily specializing in log and timber construction projects.
701 sq ft - Valdez RCM CAD DESIGN DRAFTING LTD is an architectural design firm primarily specializing in log and timber construction projects.
701 sq ft - Valdez RCM CAD DESIGN DRAFTING LTD is an architectural design firm primarily specializing in log and timber construction projects.
701 sq ft - Valdez RCM CAD DESIGN DRAFTING LTD is an architectural design firm primarily specializing in log and timber construction projects.
701 sq ft - Valdez RCM CAD DESIGN DRAFTING LTD is an architectural design firm primarily specializing in log and timber construction projects.
701 sq ft - Valdez RCM CAD DESIGN DRAFTING LTD is an architectural design firm primarily specializing in log and timber construction projects.
701 sq ft - Valdez RCM CAD DESIGN DRAFTING LTD is an architectural design firm primarily specializing in log and timber construction projects.
701 sq ft - Valdez RCM CAD DESIGN DRAFTING LTD is an architectural design firm primarily specializing in log and timber construction projects.
701 sq ft - Valdez RCM CAD DESIGN DRAFTING LTD is an architectural design firm primarily specializing in log and timber construction projects.
Valdez
701 Sq. Ft.
(65.1 sq m)
702 sq. ft. - Tyrol Cabin RCM CAD DESIGN DRAFTING LTD is an architectural design firm primarily specializing in log and timber construction projects.
702 sq. ft. - Tyrol Cabin RCM CAD DESIGN DRAFTING LTD is an architectural design firm primarily specializing in log and timber construction projects.
702 sq. ft. - Tyrol Cabin RCM CAD DESIGN DRAFTING LTD is an architectural design firm primarily specializing in log and timber construction projects.
702 sq. ft. - Tyrol Cabin RCM CAD DESIGN DRAFTING LTD is an architectural design firm primarily specializing in log and timber construction projects.
702 sq. ft. - Tyrol Cabin RCM CAD DESIGN DRAFTING LTD is an architectural design firm primarily specializing in log and timber construction projects.
702 sq. ft. - Tyrol Cabin RCM CAD DESIGN DRAFTING LTD is an architectural design firm primarily specializing in log and timber construction projects.
702 sq. ft. - Tyrol Cabin RCM CAD DESIGN DRAFTING LTD is an architectural design firm primarily specializing in log and timber construction projects.
702 sq. ft. - Tyrol Cabin RCM CAD DESIGN DRAFTING LTD is an architectural design firm primarily specializing in log and timber construction projects.
702 sq. ft. - Tyrol Cabin RCM CAD DESIGN DRAFTING LTD is an architectural design firm primarily specializing in log and timber construction projects.
Tyrol Chalet
702 Sq. Ft.
(65.2 sq m)
812 sqft - Hemlock Valley RCM CAD DESIGN DRAFTING LTD is an architectural design firm primarily specializing in log and timber construction projects.
812 sqft - Hemlock Valley RCM CAD DESIGN DRAFTING LTD is an architectural design firm primarily specializing in log and timber construction projects.
812 sqft - Hemlock Valley RCM CAD DESIGN DRAFTING LTD is an architectural design firm primarily specializing in log and timber construction projects.
812 sqft - Hemlock Valley RCM CAD DESIGN DRAFTING LTD is an architectural design firm primarily specializing in log and timber construction projects.
812 sqft - Hemlock Valley RCM CAD DESIGN DRAFTING LTD is an architectural design firm primarily specializing in log and timber construction projects.
812 sqft - Hemlock Valley RCM CAD DESIGN DRAFTING LTD is an architectural design firm primarily specializing in log and timber construction projects.
812 sqft - Hemlock Valley RCM CAD DESIGN DRAFTING LTD is an architectural design firm primarily specializing in log and timber construction projects.
812 sqft - Hemlock Valley RCM CAD DESIGN DRAFTING LTD is an architectural design firm primarily specializing in log and timber construction projects.
812 sqft - Hemlock Valley RCM CAD DESIGN DRAFTING LTD is an architectural design firm primarily specializing in log and timber construction projects.
812 sqft - Hemlock Valley RCM CAD DESIGN DRAFTING LTD is an architectural design firm primarily specializing in log and timber construction projects.
812 sqft - Hemlock Valley RCM CAD DESIGN DRAFTING LTD is an architectural design firm primarily specializing in log and timber construction projects.
812 sqft - Hemlock Valley RCM CAD DESIGN DRAFTING LTD is an architectural design firm primarily specializing in log and timber construction projects.
812 sqft - Hemlock Valley RCM CAD DESIGN DRAFTING LTD is an architectural design firm primarily specializing in log and timber construction projects.
812 sqft - Hemlock Valley RCM CAD DESIGN DRAFTING LTD is an architectural design firm primarily specializing in log and timber construction projects.
812 sqft - Hemlock Valley RCM CAD DESIGN DRAFTING LTD is an architectural design firm primarily specializing in log and timber construction projects.
812 sqft - Hemlock Valley RCM CAD DESIGN DRAFTING LTD is an architectural design firm primarily specializing in log and timber construction projects.
812 sqft - Hemlock Valley RCM CAD DESIGN DRAFTING LTD is an architectural design firm primarily specializing in log and timber construction projects.
812 sqft - Hemlock Valley RCM CAD DESIGN DRAFTING LTD is an architectural design firm primarily specializing in log and timber construction projects.
812 sqft - Hemlock Valley RCM CAD DESIGN DRAFTING LTD is an architectural design firm primarily specializing in log and timber construction projects.
812 sqft - Hemlock Valley RCM CAD DESIGN DRAFTING LTD is an architectural design firm primarily specializing in log and timber construction projects.
812 sqft - Hemlock Valley RCM CAD DESIGN DRAFTING LTD is an architectural design firm primarily specializing in log and timber construction projects.
812 sqft - Hemlock Valley RCM CAD DESIGN DRAFTING LTD is an architectural design firm primarily specializing in log and timber construction projects.
Hemlock Valley
812 Sq. Ft.
(75.4 sq m)
814 sq. ft. - Kentville RCM CAD DESIGN DRAFTING LTD is an architectural design firm primarily specializing in log and timber construction projects.
814 sq. ft. - Kentville RCM CAD DESIGN DRAFTING LTD is an architectural design firm primarily specializing in log and timber construction projects.
814 sq. ft. - Kentville RCM CAD DESIGN DRAFTING LTD is an architectural design firm primarily specializing in log and timber construction projects.
814 sq. ft. - Kentville RCM CAD DESIGN DRAFTING LTD is an architectural design firm primarily specializing in log and timber construction projects.
814 sq. ft. - Kentville RCM CAD DESIGN DRAFTING LTD is an architectural design firm primarily specializing in log and timber construction projects.
814 sq. ft. - Kentville RCM CAD DESIGN DRAFTING LTD is an architectural design firm primarily specializing in log and timber construction projects.
814 sq. ft. - Kentville RCM CAD DESIGN DRAFTING LTD is an architectural design firm primarily specializing in log and timber construction projects.
814 sq. ft. - Kentville RCM CAD DESIGN DRAFTING LTD is an architectural design firm primarily specializing in log and timber construction projects.
814 sq. ft. - Kentville RCM CAD DESIGN DRAFTING LTD is an architectural design firm primarily specializing in log and timber construction projects.
814 sq. ft. - Kentville RCM CAD DESIGN DRAFTING LTD is an architectural design firm primarily specializing in log and timber construction projects.
814 sq. ft. - Kentville RCM CAD DESIGN DRAFTING LTD is an architectural design firm primarily specializing in log and timber construction projects.
814 sq. ft. - Kentville RCM CAD DESIGN DRAFTING LTD is an architectural design firm primarily specializing in log and timber construction projects.
814 sq. ft. - Kentville RCM CAD DESIGN DRAFTING LTD is an architectural design firm primarily specializing in log and timber construction projects.
814 sq. ft. - Kentville RCM CAD DESIGN DRAFTING LTD is an architectural design firm primarily specializing in log and timber construction projects.
814 sq. ft. - Kentville RCM CAD DESIGN DRAFTING LTD is an architectural design firm primarily specializing in log and timber construction projects.
814 sq. ft. - Kentville RCM CAD DESIGN DRAFTING LTD is an architectural design firm primarily specializing in log and timber construction projects.
814 sq. ft. - Kentville RCM CAD DESIGN DRAFTING LTD is an architectural design firm primarily specializing in log and timber construction projects.
Kentville
814 Sq. Ft.
(75.6 sq m)
833 sq ft - The Riverside RCM CAD DESIGN DRAFTING LTD is an architectural design firm primarily specializing in log and timber construction projects.
833 sq ft - The Riverside RCM CAD DESIGN DRAFTING LTD is an architectural design firm primarily specializing in log and timber construction projects.
833 sq ft - The Riverside RCM CAD DESIGN DRAFTING LTD is an architectural design firm primarily specializing in log and timber construction projects.
833 sq ft - The Riverside RCM CAD DESIGN DRAFTING LTD is an architectural design firm primarily specializing in log and timber construction projects.
833 sq ft - The Riverside RCM CAD DESIGN DRAFTING LTD is an architectural design firm primarily specializing in log and timber construction projects.
833 sq ft - The Riverside RCM CAD DESIGN DRAFTING LTD is an architectural design firm primarily specializing in log and timber construction projects.
833 sq ft - The Riverside RCM CAD DESIGN DRAFTING LTD is an architectural design firm primarily specializing in log and timber construction projects.
833 sq ft - The Riverside RCM CAD DESIGN DRAFTING LTD is an architectural design firm primarily specializing in log and timber construction projects.
833 sq ft - The Riverside RCM CAD DESIGN DRAFTING LTD is an architectural design firm primarily specializing in log and timber construction projects.
833 sq ft - The Riverside RCM CAD DESIGN DRAFTING LTD is an architectural design firm primarily specializing in log and timber construction projects.
833 sq ft - The Riverside Milled RCM CAD DESIGN DRAFTING LTD is an architectural design firm primarily specializing in log and timber construction projects.
833 sq ft - The Riverside Milled RCM CAD DESIGN DRAFTING LTD is an architectural design firm primarily specializing in log and timber construction projects.
833 sq ft - The Riverside Post and Beam RCM CAD DESIGN DRAFTING LTD is an architectural design firm primarily specializing in log and timber construction projects.
833 sq ft - The Riverside Post and Beam RCM CAD DESIGN DRAFTING LTD is an architectural design firm primarily specializing in log and timber construction projects.
833 sq ft - The Riverside Timber Accent RCM CAD DESIGN DRAFTING LTD is an architectural design firm primarily specializing in log and timber construction projects.
833 sq ft - The Riverside Timber Accent RCM CAD DESIGN DRAFTING LTD is an architectural design firm primarily specializing in log and timber construction projects.
The Riverside
833 Sq. Ft.
(77.3 sq m)
876 sq ft - The Rancher RCM CAD DESIGN DRAFTING LTD is an architectural design firm primarily specializing in log and timber construction projects.
876 sq ft - The Rancher RCM CAD DESIGN DRAFTING LTD is an architectural design firm primarily specializing in log and timber construction projects.
876 sq ft - The Rancher RCM CAD DESIGN DRAFTING LTD is an architectural design firm primarily specializing in log and timber construction projects.
876 sq ft - The Rancher RCM CAD DESIGN DRAFTING LTD is an architectural design firm primarily specializing in log and timber construction projects.
876 sq ft - The Rancher RCM CAD DESIGN DRAFTING LTD is an architectural design firm primarily specializing in log and timber construction projects.
876 sq ft - The Rancher RCM CAD DESIGN DRAFTING LTD is an architectural design firm primarily specializing in log and timber construction projects.
876 sq ft - The Rancher RCM CAD DESIGN DRAFTING LTD is an architectural design firm primarily specializing in log and timber construction projects.
The Rancher
876 Sq. Ft.
(81.3 sq m)
930 sq ft - The Outback RCM CAD DESIGN DRAFTING LTD is an architectural design firm primarily specializing in log and timber construction projects.
930 sq ft - The Outback RCM CAD DESIGN DRAFTING LTD is an architectural design firm primarily specializing in log and timber construction projects.
930 sq ft - The Outback RCM CAD DESIGN DRAFTING LTD is an architectural design firm primarily specializing in log and timber construction projects.
930 sq ft - The Outback RCM CAD DESIGN DRAFTING LTD is an architectural design firm primarily specializing in log and timber construction projects.
930 sq ft - The Outback RCM CAD DESIGN DRAFTING LTD is an architectural design firm primarily specializing in log and timber construction projects.
930 sq ft - The Outback RCM CAD DESIGN DRAFTING LTD is an architectural design firm primarily specializing in log and timber construction projects.
930 sq ft - The Outback RCM CAD DESIGN DRAFTING LTD is an architectural design firm primarily specializing in log and timber construction projects.
The Outback
930 Sq. Ft.
(86.3 sq m)
953 sq. ft. - Pyramid RCM CAD DESIGN DRAFTING LTD is an architectural design firm primarily specializing in log and timber construction projects.
953 sq. ft. - Pyramid RCM CAD DESIGN DRAFTING LTD is an architectural design firm primarily specializing in log and timber construction projects.
953 sq. ft. - Pyramid RCM CAD DESIGN DRAFTING LTD is an architectural design firm primarily specializing in log and timber construction projects.
953 sq. ft. - Pyramid RCM CAD DESIGN DRAFTING LTD is an architectural design firm primarily specializing in log and timber construction projects.
953 sq. ft. - Pyramid RCM CAD DESIGN DRAFTING LTD is an architectural design firm primarily specializing in log and timber construction projects.
953 sq. ft. - Pyramid RCM CAD DESIGN DRAFTING LTD is an architectural design firm primarily specializing in log and timber construction projects.
953 sq. ft. - Pyramid RCM CAD DESIGN DRAFTING LTD is an architectural design firm primarily specializing in log and timber construction projects.
953 sq. ft. - Pyramid RCM CAD DESIGN DRAFTING LTD is an architectural design firm primarily specializing in log and timber construction projects.
953 sq. ft. - Pyramid RCM CAD DESIGN DRAFTING LTD is an architectural design firm primarily specializing in log and timber construction projects.
953 sq. ft. - Pyramid RCM CAD DESIGN DRAFTING LTD is an architectural design firm primarily specializing in log and timber construction projects.
953 sq. ft. - Pyramid RCM CAD DESIGN DRAFTING LTD is an architectural design firm primarily specializing in log and timber construction projects.
953 sq. ft. - Pyramid RCM CAD DESIGN DRAFTING LTD is an architectural design firm primarily specializing in log and timber construction projects.
953 sq. ft. - Pyramid RCM CAD DESIGN DRAFTING LTD is an architectural design firm primarily specializing in log and timber construction projects.
953 sq. ft. - Pyramid RCM CAD DESIGN DRAFTING LTD is an architectural design firm primarily specializing in log and timber construction projects.
953 sq. ft. - Pyramid RCM CAD DESIGN DRAFTING LTD is an architectural design firm primarily specializing in log and timber construction projects.
953 sq. ft. - Pyramid RCM CAD DESIGN DRAFTING LTD is an architectural design firm primarily specializing in log and timber construction projects.
953 sq. ft. - Pyramid RCM CAD DESIGN DRAFTING LTD is an architectural design firm primarily specializing in log and timber construction projects.
Pyramid
953 Sq. Ft.
(88.5 sq m)
964 sq ft - Treasure RCM CAD DESIGN DRAFTING LTD is an architectural design firm primarily specializing in log and timber construction projects.
964 sq ft - Treasure RCM CAD DESIGN DRAFTING LTD is an architectural design firm primarily specializing in log and timber construction projects.
964 sq ft - Treasure RCM CAD DESIGN DRAFTING LTD is an architectural design firm primarily specializing in log and timber construction projects.
964 sq ft - Treasure RCM CAD DESIGN DRAFTING LTD is an architectural design firm primarily specializing in log and timber construction projects.
964 sq ft - Treasure RCM CAD DESIGN DRAFTING LTD is an architectural design firm primarily specializing in log and timber construction projects.
964 sq ft - Treasure RCM CAD DESIGN DRAFTING LTD is an architectural design firm primarily specializing in log and timber construction projects.
964 sq ft - Treasure RCM CAD DESIGN DRAFTING LTD is an architectural design firm primarily specializing in log and timber construction projects.
964 sq ft - Treasure RCM CAD DESIGN DRAFTING LTD is an architectural design firm primarily specializing in log and timber construction projects.
964 sq ft - Treasure RCM CAD DESIGN DRAFTING LTD is an architectural design firm primarily specializing in log and timber construction projects.
964 sq ft - Treasure RCM CAD DESIGN DRAFTING LTD is an architectural design firm primarily specializing in log and timber construction projects.
964 sq ft - Treasure RCM CAD DESIGN DRAFTING LTD is an architectural design firm primarily specializing in log and timber construction projects.
964 sq ft - Treasure RCM CAD DESIGN DRAFTING LTD is an architectural design firm primarily specializing in log and timber construction projects.
Treasure
964 Sq. Ft.
(86.5 sq m)
978 sq ft - Vacation Sanctuary RCM CAD DESIGN DRAFTING LTD is an architectural design firm primarily specializing in log and timber construction projects.
978 sq ft - Vacation Sanctuary RCM CAD DESIGN DRAFTING LTD is an architectural design firm primarily specializing in log and timber construction projects.
978 sq ft - Vacation Sanctuary RCM CAD DESIGN DRAFTING LTD is an architectural design firm primarily specializing in log and timber construction projects.
978 sq ft - Vacation Sanctuary RCM CAD DESIGN DRAFTING LTD is an architectural design firm primarily specializing in log and timber construction projects.
978 sq ft - Vacation Sanctuary RCM CAD DESIGN DRAFTING LTD is an architectural design firm primarily specializing in log and timber construction projects.
978 sq ft - Vacation Sanctuary RCM CAD DESIGN DRAFTING LTD is an architectural design firm primarily specializing in log and timber construction projects.
978 sq ft - Vacation Sanctuary RCM CAD DESIGN DRAFTING LTD is an architectural design firm primarily specializing in log and timber construction projects.
978 sq ft - Vacation Sanctuary RCM CAD DESIGN DRAFTING LTD is an architectural design firm primarily specializing in log and timber construction projects.
978 sq ft - Vacation Sanctuary RCM CAD DESIGN DRAFTING LTD is an architectural design firm primarily specializing in log and timber construction projects.
978 sq ft - Vacation Sanctuary RCM CAD DESIGN DRAFTING LTD is an architectural design firm primarily specializing in log and timber construction projects.
978 sq ft - Vacation Sanctuary RCM CAD DESIGN DRAFTING LTD is an architectural design firm primarily specializing in log and timber construction projects.
978 sq ft - Vacation Sanctuary RCM CAD DESIGN DRAFTING LTD is an architectural design firm primarily specializing in log and timber construction projects.
978 sq ft - Vacation Sanctuary RCM CAD DESIGN DRAFTING LTD is an architectural design firm primarily specializing in log and timber construction projects.
978 sq ft - Vacation Sanctuary RCM CAD DESIGN DRAFTING LTD is an architectural design firm primarily specializing in log and timber construction projects.
978 sq ft - Vacation Sanctuary RCM CAD DESIGN DRAFTING LTD is an architectural design firm primarily specializing in log and timber construction projects.
978 sq ft - Vacation Sanctuary RCM CAD DESIGN DRAFTING LTD is an architectural design firm primarily specializing in log and timber construction projects.
978 sq ft - Vacation Sanctuary RCM CAD DESIGN DRAFTING LTD is an architectural design firm primarily specializing in log and timber construction projects.
978 sq ft - Vacation Sanctuary RCM CAD DESIGN DRAFTING LTD is an architectural design firm primarily specializing in log and timber construction projects.
978 sq ft - Vacation Sanctuary RCM CAD DESIGN DRAFTING LTD is an architectural design firm primarily specializing in log and timber construction projects.
978 sq ft - Vacation Sanctuary RCM CAD DESIGN DRAFTING LTD is an architectural design firm primarily specializing in log and timber construction projects.
978 sq ft - Vacation Sanctuary RCM CAD DESIGN DRAFTING LTD is an architectural design firm primarily specializing in log and timber construction projects.
978 sq ft - Vacation Sanctuary RCM CAD DESIGN DRAFTING LTD is an architectural design firm primarily specializing in log and timber construction projects.
978 sq ft - Vacation Sanctuary RCM CAD DESIGN DRAFTING LTD is an architectural design firm primarily specializing in log and timber construction projects.
978 sq ft - Vacation Sanctuary RCM CAD DESIGN DRAFTING LTD is an architectural design firm primarily specializing in log and timber construction projects.
Vacation Sanctuary
978 Sq. Ft.
(90.8 sq m)
980 sq ft - Amarok RCM CAD DESIGN DRAFTING LTD is an architectural design firm primarily specializing in log and timber construction projects.
980 sq ft - Amarok Handcrafted RCM CAD DESIGN DRAFTING LTD is an architectural design firm primarily specializing in log and timber construction projects.
980 sq ft - Amarok Handcrafted RCM CAD DESIGN DRAFTING LTD is an architectural design firm primarily specializing in log and timber construction projects.
980 sq ft - Amarok Handcrafted RCM CAD DESIGN DRAFTING LTD is an architectural design firm primarily specializing in log and timber construction projects.
980 sq ft - Amarok Handcrafted RCM CAD DESIGN DRAFTING LTD is an architectural design firm primarily specializing in log and timber construction projects.
980 sq ft - Amarok Handcrafted RCM CAD DESIGN DRAFTING LTD is an architectural design firm primarily specializing in log and timber construction projects.
980 sq ft - Amarok Handcrafted RCM CAD DESIGN DRAFTING LTD is an architectural design firm primarily specializing in log and timber construction projects.
980 sq ft - Amarok Handcrafted RCM CAD DESIGN DRAFTING LTD is an architectural design firm primarily specializing in log and timber construction projects.
980 sq ft - Amarok Handcrafted RCM CAD DESIGN DRAFTING LTD is an architectural design firm primarily specializing in log and timber construction projects.
Amarok
980 Sq. Ft.
(91.0 sq m)
980 sq ft - Log Chalet RCM CAD DESIGN DRAFTING LTD is an architectural design firm primarily specializing in log and timber construction projects.
980 sq ft - Log Chalet RCM CAD DESIGN DRAFTING LTD is an architectural design firm primarily specializing in log and timber construction projects.
980 sq ft - Log Chalet RCM CAD DESIGN DRAFTING LTD is an architectural design firm primarily specializing in log and timber construction projects.
980 sq ft - Log Chalet RCM CAD DESIGN DRAFTING LTD is an architectural design firm primarily specializing in log and timber construction projects.
980 sq ft - Log Chalet RCM CAD DESIGN DRAFTING LTD is an architectural design firm primarily specializing in log and timber construction projects.
980 sq ft - Log Chalet RCM CAD DESIGN DRAFTING LTD is an architectural design firm primarily specializing in log and timber construction projects.
980 sq ft - Log Chalet RCM CAD DESIGN DRAFTING LTD is an architectural design firm primarily specializing in log and timber construction projects.
980 sq ft - Log Chalet RCM CAD DESIGN DRAFTING LTD is an architectural design firm primarily specializing in log and timber construction projects.
Log Chalet
980 Sq. Ft.
(91.0 sq m)
997 sq. ft. - Westminster RCM CAD DESIGN DRAFTING LTD is an architectural design firm primarily specializing in log and timber construction projects.
997 sq. ft. - Westminster RCM CAD DESIGN DRAFTING LTD is an architectural design firm primarily specializing in log and timber construction projects.
997 sq. ft. - Westminster RCM CAD DESIGN DRAFTING LTD is an architectural design firm primarily specializing in log and timber construction projects.
997 sq. ft. - Westminster RCM CAD DESIGN DRAFTING LTD is an architectural design firm primarily specializing in log and timber construction projects.
997 sq. ft. - Westminster RCM CAD DESIGN DRAFTING LTD is an architectural design firm primarily specializing in log and timber construction projects.
997 sq. ft. - Westminster RCM CAD DESIGN DRAFTING LTD is an architectural design firm primarily specializing in log and timber construction projects.
997 sq. ft. - Westminster RCM CAD DESIGN DRAFTING LTD is an architectural design firm primarily specializing in log and timber construction projects.
997 sq. ft. - Westminster RCM CAD DESIGN DRAFTING LTD is an architectural design firm primarily specializing in log and timber construction projects.
997 sq. ft. - Westminster RCM CAD DESIGN DRAFTING LTD is an architectural design firm primarily specializing in log and timber construction projects.
997 sq. ft. - Westminster RCM CAD DESIGN DRAFTING LTD is an architectural design firm primarily specializing in log and timber construction projects.
997 sq. ft. - Westminster RCM CAD DESIGN DRAFTING LTD is an architectural design firm primarily specializing in log and timber construction projects.
997 sq. ft. - Westminster RCM CAD DESIGN DRAFTING LTD is an architectural design firm primarily specializing in log and timber construction projects.
997 sq. ft. - Westminster RCM CAD DESIGN DRAFTING LTD is an architectural design firm primarily specializing in log and timber construction projects.
997 sq. ft. - Westminster RCM CAD DESIGN DRAFTING LTD is an architectural design firm primarily specializing in log and timber construction projects.
997 sq. ft. - Westminster RCM CAD DESIGN DRAFTING LTD is an architectural design firm primarily specializing in log and timber construction projects.
997 sq. ft. - Westminster RCM CAD DESIGN DRAFTING LTD is an architectural design firm primarily specializing in log and timber construction projects.
997 sq. ft. - Westminster RCM CAD DESIGN DRAFTING LTD is an architectural design firm primarily specializing in log and timber construction projects.
997 sq. ft. - Westminster RCM CAD DESIGN DRAFTING LTD is an architectural design firm primarily specializing in log and timber construction projects.
997 sq. ft. - Westminster RCM CAD DESIGN DRAFTING LTD is an architectural design firm primarily specializing in log and timber construction projects.
997 sq. ft. - Westminster RCM CAD DESIGN DRAFTING LTD is an architectural design firm primarily specializing in log and timber construction projects.
Westminster
997 Sq. Ft.
(92.6 sq m)
Go to Top
We use cookies to give you the best online experience. By agreeing you accept the use of cookies in accordance with our cookie policy. Ok Privacy policy